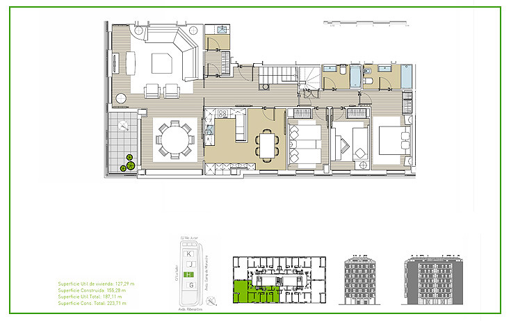
Home > Planos > Edificio Europa Bloque K > Duplex tipo D
Planta Principal Planta Bajo Cubierta